Ваша корзина пуста
Выберите в каталоге интересующий товар
и нажмите кнопку «В корзину».
Перейти в каталог
Заказать звонок
Обратная связь
Бытовые и промышленные климатические системы
+7 (495) 212-07-22
+7 (495) 212-07-22
г. Москва, г. Москва, ш. Энтузиастов, д. 17
Пн-Пт: 10:00-18:00
Cб-Вс: Выходной
info@igc-aircon.com
Заказать звонок
Поиск
Компания
О компании
История
Партнёры
Отзывы
Вакансии
Оборудование
Бытовые сплит-системы
Мультизональные VRF-системы
Полупромышленные кондиционеры
Промышленные кондиционеры
Тепловые насосы
Сплит-системы
Серия Alfa DC Inverter
Серия Omega
Серия Freddo DC Inverter
Серия Freddo Grey DC Inverter
Серия Freddo S DC Inverter
Серия Fresco
Серия Fresco S
Мультисплит-системы
Канальные внутренние блоки
Кассетные внутренние блоки
Напольно-потолочные внутренние блоки
Настенные внутренние блоки
Универсальные наружные блоки
Аксессуары для сплит-систем
Высоконапорные канальные внутренние блоки
Индивидуальные VRF
Кассетные внутренние блоки
Модульные наружные блоки
Напольно-потолочные внутренние блоки
Наружные блоки Mini
Настенные внутренние блоки
Низконапорные канальные внутренние блоки
Средненапорные канальные внутренние блоки
Тонкие канальные блоки
Аксессуары для VRF
Аксессуары для полупромышленных кондиционеров
Канальные сплит-системы
Кассетные сплит-системы
Колонные сплит-системы
Напольно-потолочные сплит-системы
Наружные блоки
Аксессуары для промышленных кондиционеров
Канальные внутренние блоки большой мощности
ККБ
Колонные внутренние блоки большой мощности
Мини чиллеры
Модульные чиллеры
Мощные чиллеры с винтовым компрессором
Руфтопы
Универсальные наружные блоки
Фанкойлы
Наши объекты
Мультизональные системы
Полупромышленные системы
Чиллеры
Стать дилером
Стать дилером
Кондиционеры оптом
Новости
Где купить
Поддержка
Контакты
...
Компания
О компании
История
Партнёры
Отзывы
Вакансии
Оборудование
Бытовые сплит-системы
Сплит-системы
Серия Alfa DC Inverter
Серия Omega
Серия Freddo DC Inverter
Серия Freddo Grey DC Inverter
Серия Freddo S DC Inverter
Серия Fresco
Серия Fresco S
Мультисплит-системы
Канальные внутренние блоки
Кассетные внутренние блоки
Напольно-потолочные внутренние блоки
Настенные внутренние блоки
Универсальные наружные блоки
Аксессуары для сплит-систем
Мультизональные VRF-системы
Высоконапорные канальные внутренние блоки
Индивидуальные VRF
Кассетные внутренние блоки
Модульные наружные блоки
Напольно-потолочные внутренние блоки
Наружные блоки Mini
Настенные внутренние блоки
Низконапорные канальные внутренние блоки
Средненапорные канальные внутренние блоки
Тонкие канальные блоки
Аксессуары для VRF
Полупромышленные кондиционеры
Аксессуары для полупромышленных кондиционеров
Канальные сплит-системы
Кассетные сплит-системы
Колонные сплит-системы
Напольно-потолочные сплит-системы
Наружные блоки
Промышленные кондиционеры
Аксессуары для промышленных кондиционеров
Канальные внутренние блоки большой мощности
ККБ
Колонные внутренние блоки большой мощности
Мини чиллеры
Модульные чиллеры
Мощные чиллеры с винтовым компрессором
Руфтопы
Универсальные наружные блоки
Фанкойлы
Кассетные 360° Х серия
Кассетные 4х-поточные 2х-трубные
Кассетные 4х-поточные 2х-трубные компактные
Кассетные 4х-поточные 4х-трубные
Кассетные однопоточные
Настенные фанкойлы
Средненапорные канальные Х серия
Низконапорные канальные
Высоконапорные канальные
Средненапорные канальные
Напольно-потолочные бескорпусные
Напольно-потолочные с забором воздуха снизу
Напольно-потолочные с забором воздуха спереди
Канального типа, 2‑х трубные, высоконапорные, серия Q
Канального типа, 4‑х трубные, серия Q
Канальные 4х-трубные
Кассетного типа 4‑х трубные, серия Q
Консольного типа ультратонкие, 2‑х трубные, серия Q
Напольно-потолочные 2-х трубные, серия Q
Напольно-потолочные, 4-х трубные, серия Q
Настенные фанкойлы сериа А
Тепловые насосы
Наши объекты
Мультизональные системы
Полупромышленные системы
Чиллеры
Стать дилером
Стать дилером
Кондиционеры оптом
Новости
Где купить
Поддержка
Контакты
+7 (495) 212-07-22
Заказать звонок
Оборудование
Мультизональные VRF-системы
Высоконапорные канальные внутренние блоки
Индивидуальные VRF
Кассетные внутренние блоки
Модульные наружные блоки
Напольно-потолочные внутренние блоки
Наружные блоки Mini
Настенные внутренние блоки
Низконапорные канальные внутренние блоки
Средненапорные канальные внутренние блоки
Тонкие канальные блоки
Аксессуары для VRF
Полупромышленные кондиционеры
Аксессуары для полупромышленных кондиционеров
Канальные сплит-системы
Кассетные сплит-системы
Колонные сплит-системы
Напольно-потолочные сплит-системы
Наружные блоки
Промышленные кондиционеры
Аксессуары для промышленных кондиционеров
Канальные внутренние блоки большой мощности
ККБ
Колонные внутренние блоки большой мощности
Мини чиллеры
Модульные чиллеры
Мощные чиллеры с винтовым компрессором
Руфтопы
Универсальные наружные блоки
Фанкойлы
Кассетные 360° Х серия
Кассетные 4х-поточные 2х-трубные
Кассетные 4х-поточные 2х-трубные компактные
Кассетные 4х-поточные 4х-трубные
Кассетные однопоточные
Настенные фанкойлы
Средненапорные канальные Х серия
Низконапорные канальные
Высоконапорные канальные
Средненапорные канальные
Напольно-потолочные бескорпусные
Напольно-потолочные с забором воздуха снизу
Напольно-потолочные с забором воздуха спереди
Канального типа, 2‑х трубные, высоконапорные, серия Q
Канального типа, 4‑х трубные, серия Q
Канальные 4х-трубные
Кассетного типа 4‑х трубные, серия Q
Консольного типа ультратонкие, 2‑х трубные, серия Q
Напольно-потолочные 2-х трубные, серия Q
Напольно-потолочные, 4-х трубные, серия Q
Настенные фанкойлы сериа А
Тепловые насосы
Бытовые сплит-системы
Сплит-системы
Серия Alfa DC Inverter
Серия Omega
Серия Freddo DC Inverter
Серия Freddo Grey DC Inverter
Серия Freddo S DC Inverter
Серия Fresco
Серия Fresco S
Мультисплит-системы
Канальные внутренние блоки
Кассетные внутренние блоки
Напольно-потолочные внутренние блоки
Настенные внутренние блоки
Универсальные наружные блоки
Аксессуары для сплит-систем
Наши объекты
Мультизональные системы
Полупромышленные системы
Чиллеры
Стать дилером
Стать дилером
Кондиционеры оптом
Новости
Где купить
Поддержка
Контакты
Компания
О компании
История
Партнёры
Отзывы
Вакансии
Задать вопрос
Войти
Корзина
Отложенные
Сравнение товаров
г. Москва, г. Москва, ш. Энтузиастов, д. 17
info@igc-aircon.com
Компания
О компании
История
Партнёры
Отзывы
Вакансии
Оборудование
Бытовые сплит-системы
Мультизональные VRF-системы
Полупромышленные кондиционеры
Промышленные кондиционеры
Тепловые насосы
Сплит-системы
Серия Alfa DC Inverter
Серия Omega
Серия Freddo DC Inverter
Серия Freddo Grey DC Inverter
Серия Freddo S DC Inverter
Серия Fresco
Серия Fresco S
Мультисплит-системы
Канальные внутренние блоки
Кассетные внутренние блоки
Напольно-потолочные внутренние блоки
Настенные внутренние блоки
Универсальные наружные блоки
Аксессуары для сплит-систем
Высоконапорные канальные внутренние блоки
Индивидуальные VRF
Кассетные внутренние блоки
Модульные наружные блоки
Напольно-потолочные внутренние блоки
Наружные блоки Mini
Настенные внутренние блоки
Низконапорные канальные внутренние блоки
Средненапорные канальные внутренние блоки
Тонкие канальные блоки
Аксессуары для VRF
Аксессуары для полупромышленных кондиционеров
Канальные сплит-системы
Кассетные сплит-системы
Колонные сплит-системы
Напольно-потолочные сплит-системы
Наружные блоки
Аксессуары для промышленных кондиционеров
Канальные внутренние блоки большой мощности
ККБ
Колонные внутренние блоки большой мощности
Мини чиллеры
Модульные чиллеры
Мощные чиллеры с винтовым компрессором
Руфтопы
Универсальные наружные блоки
Фанкойлы
Наши объекты
Мультизональные системы
Полупромышленные системы
Чиллеры
Стать дилером
Стать дилером
Кондиционеры оптом
Новости
Где купить
Поддержка
Контакты
...
Компания
О компании
История
Партнёры
Отзывы
Вакансии
Оборудование
Бытовые сплит-системы
Сплит-системы
Серия Alfa DC Inverter
Серия Omega
Серия Freddo DC Inverter
Серия Freddo Grey DC Inverter
Серия Freddo S DC Inverter
Серия Fresco
Серия Fresco S
Мультисплит-системы
Канальные внутренние блоки
Кассетные внутренние блоки
Напольно-потолочные внутренние блоки
Настенные внутренние блоки
Универсальные наружные блоки
Аксессуары для сплит-систем
Мультизональные VRF-системы
Высоконапорные канальные внутренние блоки
Индивидуальные VRF
Кассетные внутренние блоки
Модульные наружные блоки
Напольно-потолочные внутренние блоки
Наружные блоки Mini
Настенные внутренние блоки
Низконапорные канальные внутренние блоки
Средненапорные канальные внутренние блоки
Тонкие канальные блоки
Аксессуары для VRF
Полупромышленные кондиционеры
Аксессуары для полупромышленных кондиционеров
Канальные сплит-системы
Кассетные сплит-системы
Колонные сплит-системы
Напольно-потолочные сплит-системы
Наружные блоки
Промышленные кондиционеры
Аксессуары для промышленных кондиционеров
Канальные внутренние блоки большой мощности
ККБ
Колонные внутренние блоки большой мощности
Мини чиллеры
Модульные чиллеры
Мощные чиллеры с винтовым компрессором
Руфтопы
Универсальные наружные блоки
Фанкойлы
Кассетные 360° Х серия
Кассетные 4х-поточные 2х-трубные
Кассетные 4х-поточные 2х-трубные компактные
Кассетные 4х-поточные 4х-трубные
Кассетные однопоточные
Настенные фанкойлы
Средненапорные канальные Х серия
Низконапорные канальные
Высоконапорные канальные
Средненапорные канальные
Напольно-потолочные бескорпусные
Напольно-потолочные с забором воздуха снизу
Напольно-потолочные с забором воздуха спереди
Канального типа, 2‑х трубные, высоконапорные, серия Q
Канального типа, 4‑х трубные, серия Q
Канальные 4х-трубные
Кассетного типа 4‑х трубные, серия Q
Консольного типа ультратонкие, 2‑х трубные, серия Q
Напольно-потолочные 2-х трубные, серия Q
Напольно-потолочные, 4-х трубные, серия Q
Настенные фанкойлы сериа А
Тепловые насосы
Наши объекты
Мультизональные системы
Полупромышленные системы
Чиллеры
Стать дилером
Стать дилером
Кондиционеры оптом
Новости
Где купить
Поддержка
Контакты
Поиск
Компания
Назад
Компания
О компании
История
Партнёры
Отзывы
Вакансии
Оборудование
Назад
Оборудование
Бытовые сплит-системы
Назад
Бытовые сплит-системы
Сплит-системы
Назад
Сплит-системы
Серия Alfa DC Inverter
Серия Omega
Серия Freddo DC Inverter
Серия Freddo Grey DC Inverter
Серия Freddo S DC Inverter
Серия Fresco
Серия Fresco S
Мультисплит-системы
Назад
Мультисплит-системы
Канальные внутренние блоки
Кассетные внутренние блоки
Напольно-потолочные внутренние блоки
Настенные внутренние блоки
Универсальные наружные блоки
Аксессуары для сплит-систем
Мультизональные VRF-системы
Назад
Мультизональные VRF-системы
Высоконапорные канальные внутренние блоки
Индивидуальные VRF
Кассетные внутренние блоки
Модульные наружные блоки
Напольно-потолочные внутренние блоки
Наружные блоки Mini
Настенные внутренние блоки
Низконапорные канальные внутренние блоки
Средненапорные канальные внутренние блоки
Тонкие канальные блоки
Аксессуары для VRF
Полупромышленные кондиционеры
Назад
Полупромышленные кондиционеры
Аксессуары для полупромышленных кондиционеров
Канальные сплит-системы
Кассетные сплит-системы
Колонные сплит-системы
Напольно-потолочные сплит-системы
Наружные блоки
Промышленные кондиционеры
Назад
Промышленные кондиционеры
Аксессуары для промышленных кондиционеров
Канальные внутренние блоки большой мощности
ККБ
Колонные внутренние блоки большой мощности
Мини чиллеры
Модульные чиллеры
Мощные чиллеры с винтовым компрессором
Руфтопы
Универсальные наружные блоки
Фанкойлы
Назад
Фанкойлы
Кассетные 360° Х серия
Кассетные 4х-поточные 2х-трубные
Кассетные 4х-поточные 2х-трубные компактные
Кассетные 4х-поточные 4х-трубные
Кассетные однопоточные
Настенные фанкойлы
Средненапорные канальные Х серия
Низконапорные канальные
Высоконапорные канальные
Средненапорные канальные
Напольно-потолочные бескорпусные
Напольно-потолочные с забором воздуха снизу
Напольно-потолочные с забором воздуха спереди
Канального типа, 2‑х трубные, высоконапорные, серия Q
Канального типа, 4‑х трубные, серия Q
Канальные 4х-трубные
Кассетного типа 4‑х трубные, серия Q
Консольного типа ультратонкие, 2‑х трубные, серия Q
Напольно-потолочные 2-х трубные, серия Q
Напольно-потолочные, 4-х трубные, серия Q
Настенные фанкойлы сериа А
Тепловые насосы
Наши объекты
Назад
Наши объекты
Мультизональные системы
Полупромышленные системы
Чиллеры
Стать дилером
Назад
Стать дилером
Стать дилером
Кондиционеры оптом
Новости
Где купить
Поддержка
Контакты
г. Москва, г. Москва, ш. Энтузиастов, д. 17
+7 (495) 212-07-22
info@igc-aircon.com
Личный кабинет
Поиск
Главная
/
Каталог товаров
/
Бытовые сплит-системы
/
Сплит-системы
/
Серия Omega
/
RAS/RAC-24АТ
RAS/RAC-24АТ
Поделиться:
RAS/RAC-24АТ
120 000 руб.
НЕТ В НАЛИЧИИ
RAS/RAC-24АТ
ГДЕ КУПИТЬ
120 000 руб.
Уточнить цену
В наличии
ГДЕ КУПИТЬ
Характеристики
Модель внутреннего блока
—
RAS-24AT
Модель наружного блока
—
RAC-24AT
Производительность, БТЕ
—
24000
Производительность (охлаждение), Вт
—
7340
Производительность (обогрев), Вт
—
7680
Все характеристики
Цена действительна только для интернет-магазина и может отличаться от цен в розничных магазинах
Описание
Характеристики
Документы
Производительность - 24 000 БТЕ;
Охлаждение - 7 340 Вт;
Обогрев - 7 680 Вт.
Модель внутреннего блока
RAS-24AT
Модель наружного блока
RAC-24AT
Производительность, БТЕ
24000
Производительность (охлаждение), Вт
7340
Производительность (обогрев), Вт
7680
Потребляемая мощность (охлаждение), Вт
2280
Потребляемая мощность (обогрев), Вт
2110
Номинальный ток (охлаждение), А
10.8
Номинальный ток (обогрев), А
10
Электропитание, Ф/В/Гц
~220-240/50
EER (класс)
3.22
COP (класс)
3.64
Объем рециркулируемого воздуха, м³/ч
1250/1300
Фреон
R32
Заводская загрузка фреона, кг
1,05
Диапазон рабочих температур (охлаждение), °С
15-43
Диапазон рабочих температур (обогрев), °С
-7~27
Диаметр жидкостной трубки, дюйм
1/4
Диаметр газовой трубки, дюйм
1/2
Диаметр дренажной трубки, мм
16
Диаметр газовой трубки, мм
12.70
Диаметр жидкостной трубки, мм
6.35
Максимальная длина трубопровода, м
25
Максимальный перепад высот, м
10
Тип компрессора
Роторный
Марка компрессора
HIGHLY
Модель компрессора
GSH280CV-C8LU5
Уровень шума внутреннего блока (H/M/L), дБ(А)
52/49/48/47/45/43/41
Уровень шума наружного блока, дБ(А)
55
Размеры внутреннего блока без упаковки (ШхГхВ), мм
1100×222×333
Размеры внутреннего блока с упаковкой (ШхГхВ), мм
1165×295×405
Размеры наружного блока без упаковки (ШхГхВ), мм
853×349×602
Размеры наружного блока с упаковкой (ШхГхВ), мм
949×392×732
Вес внутреннего блока, кг
14
Вес внутреннего блока с упаковкой, кг
17
Вес наружного блока, кг
46.5
Вес наружного блока с упаковкой, кг
49.5
Инструкции
Инструкции wi-fi IGC Alfa и Omega
Скачать
Инструкции
Инструкции на кондиционеры OMEGA (серия AT)
Скачать
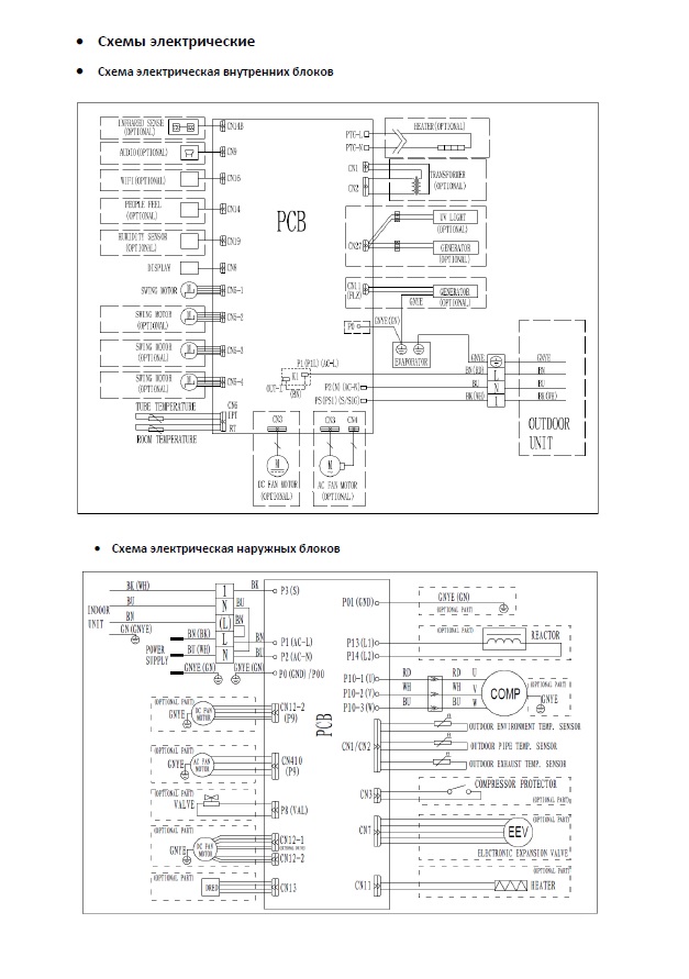
Схемы подключений
Схемы подключения сплит-системы Omega
Скачать
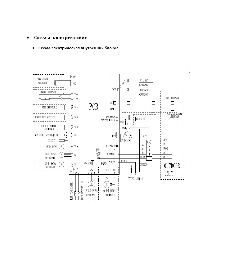
Схемы подключений
Схемы подключения сплит-системы Alfa
Скачать
Выберите один из подарков
Продолжая использовать сайт, вы соглашаетесь с
политикой использования
файлов cookie.
OK